Rutkowski Development » Oferty » Aleja A U8
Aleja A U8
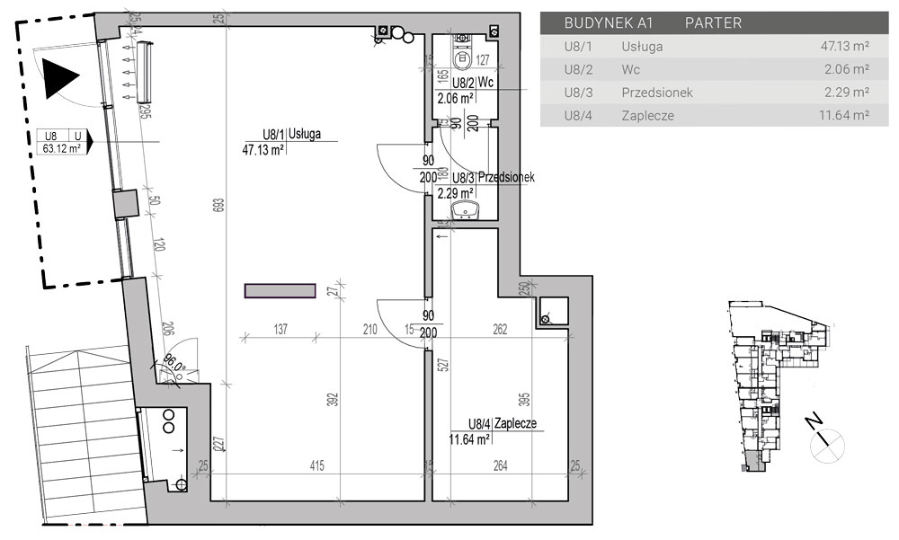
Numer
U8
Oferta
Aleja
Etap
A
Miasto
Białystok
Typ
Lokal usługowy
Liczba pokoi
0
Powierzchnia
63.12 m2
Piętro
0
Status
wolne
CHCĘ POZNAĆ SZCZEGÓŁY LOKALU
Proszę o kontakt.


