Rutkowski Development » Oferty » Apartamenty Przystań F M29
Apartamenty Przystań F M29
Całkowita cena brutto:
497 962 zł*
Cena brutto za m²:
8 590,00 zł*
* Najniższa cena w ciągu ostatnich 30 dni.
(Historia cen)
Do zakupu mieszkania obowiązkowe: miejsce postojowe i komórka lokatorska.
Komórki lokatorskie
Miejsca postojowe wew.
Miejsca postojowe zew.
* Najniższa cena w ciągu ostatnich 30 dni.
Nabycie lokalu mieszkalnego bądź miejsca postojowego wiąże się z koniecznością nabycia udziału wynoszącego 1/850 część we współwłasności działek numer 201/18 i 201/21, stanowiących drogę wewnętrzną dojazdową, za cenę 100,- złotych brutto, czyli do zakupu każdego lokalu mieszkalnego bądź wybranego miejsca postojowego należy doliczyć po 100,- złotych brutto.
Numer
M29
Oferta
Apartamenty Przystań
Etap
F
Miasto
Giżycko
Typ
Mieszkanie
Liczba pokoi
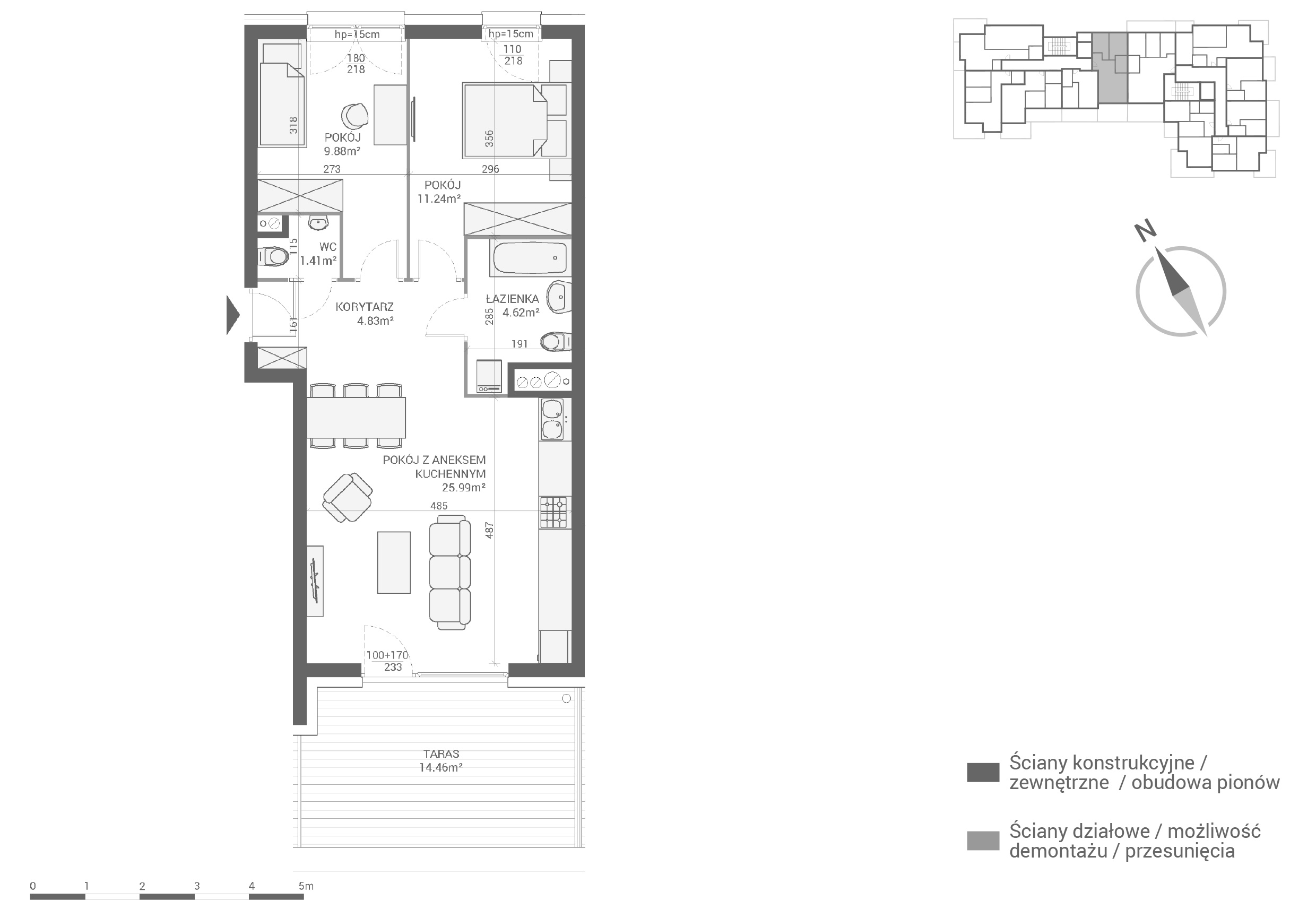
3
Powierzchnia
57.97 m2
Piętro
1
Status
wolne
CHCĘ POZNAĆ SZCZEGÓŁY LOKALU
Proszę o kontakt.


