Rutkowski Development » Oferty » Apartamenty Przystań F M8
Apartamenty Przystań F M8
Całkowita cena brutto:
515 314 zł*
Cena brutto za m²:
8 590,00 zł*
* Najniższa cena w ciągu ostatnich 30 dni.
(Historia cen)
Do zakupu mieszkania obowiązkowe: miejsce postojowe i komórka lokatorska.
Komórki lokatorskie
Miejsca postojowe wew.
Miejsca postojowe zew.
* Najniższa cena w ciągu ostatnich 30 dni.
Nabycie lokalu mieszkalnego bądź miejsca postojowego wiąże się z koniecznością nabycia udziału wynoszącego 1/850 część we współwłasności działek numer 201/18 i 201/21, stanowiących drogę wewnętrzną dojazdową, za cenę 100,- złotych brutto, czyli do zakupu każdego lokalu mieszkalnego bądź wybranego miejsca postojowego należy doliczyć po 100,- złotych brutto.
Numer
M8
Oferta
Apartamenty Przystań
Etap
F
Miasto
Giżycko
Typ
Mieszkanie
Liczba pokoi
3
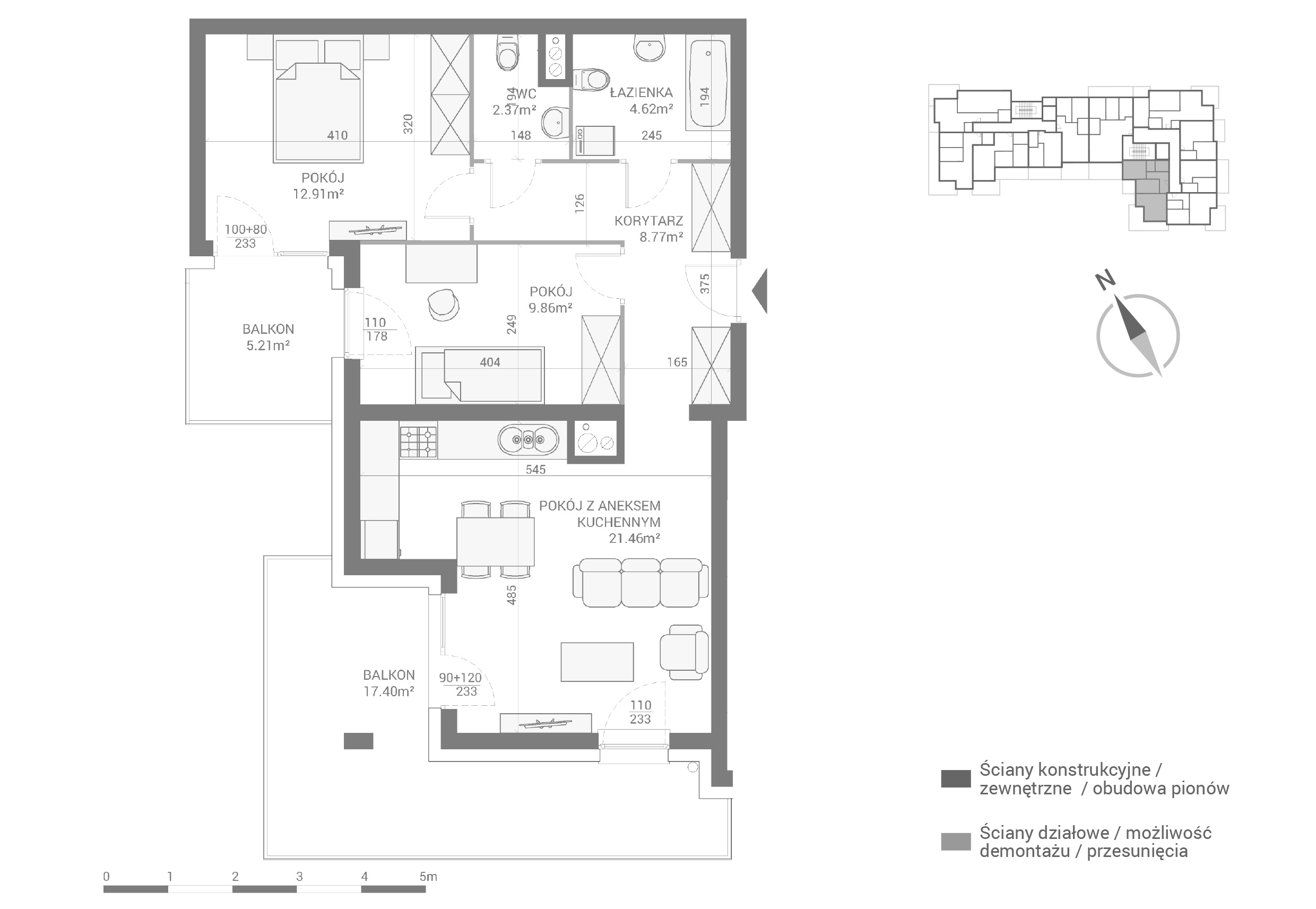
Powierzchnia
59.99 m2
Piętro
1
Status
wolne
CHCĘ POZNAĆ SZCZEGÓŁY LOKALU
Proszę o kontakt.


