Rutkowski Development » Oferty » Ignatki Forest II M72
Ignatki Forest II M72
Całkowita cena brutto:
570 723 zł*
Cena brutto za m²:
10 300,00 zł*
* Najniższa cena w ciągu ostatnich 30 dni.
(Historia cen)
Komórki lokatorskie
Miejsca postojowe wew.
Miejsca postojowe zew.
Pomieszczenia na rowery
* Najniższa cena w ciągu ostatnich 30 dni.
Numer
M72
Oferta
Ignatki Forest
Etap
II
Miasto
Białystok
Typ
Mieszkanie
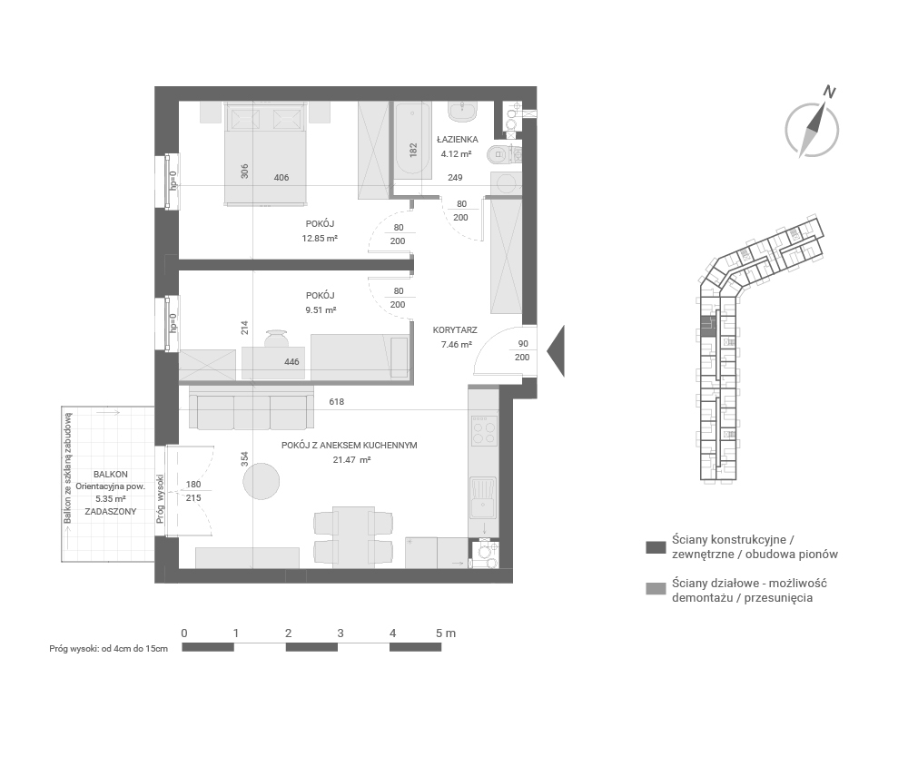
Liczba pokoi
3
Powierzchnia
55.41 m2
Piętro
2
Status
wolne
CHCĘ POZNAĆ SZCZEGÓŁY LOKALU
Proszę o kontakt.


